About
Services
Portfolio
Contact
Free consultation
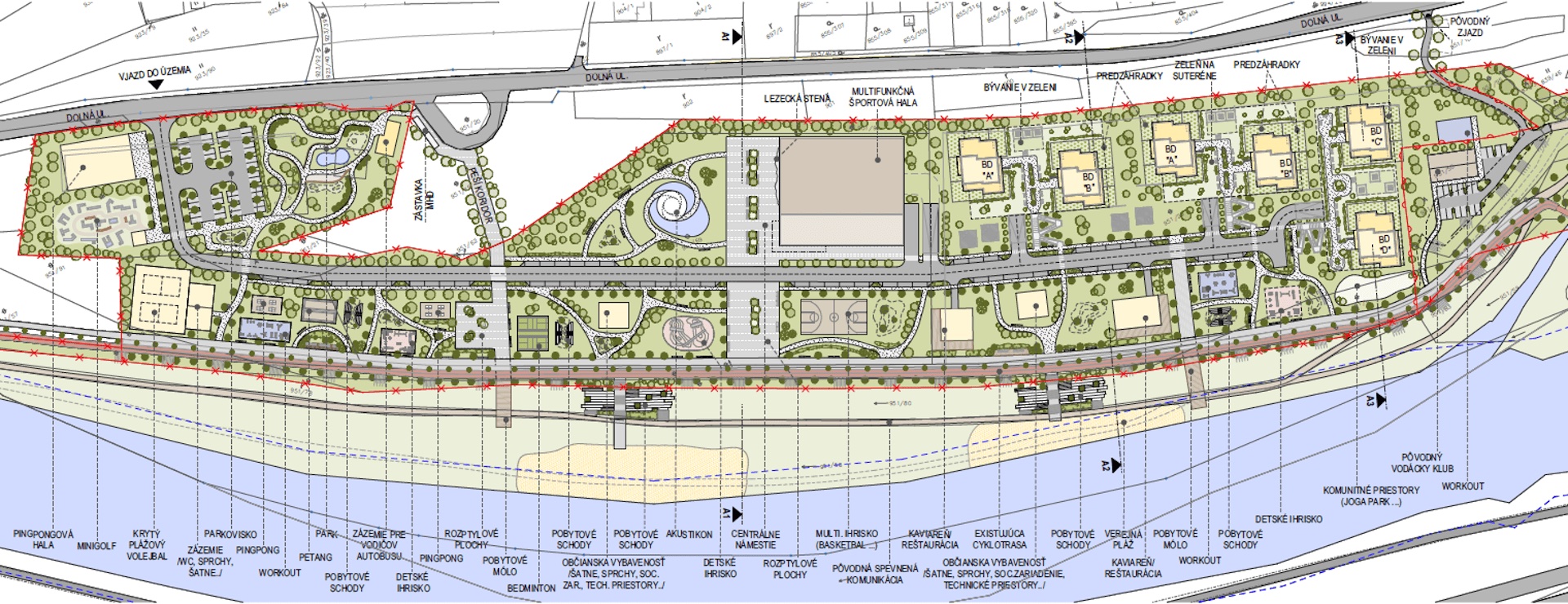
Portfolio - Masterplan
Our latest projects
Masterplan - Bory Business Park
Masterplan - Iran
Masterplan - PHAROS
Masterplan - MOTO
Masterplan - BUDATIN
Masterplan - RAKYTA